Skip to main content

Cleaning Procedure

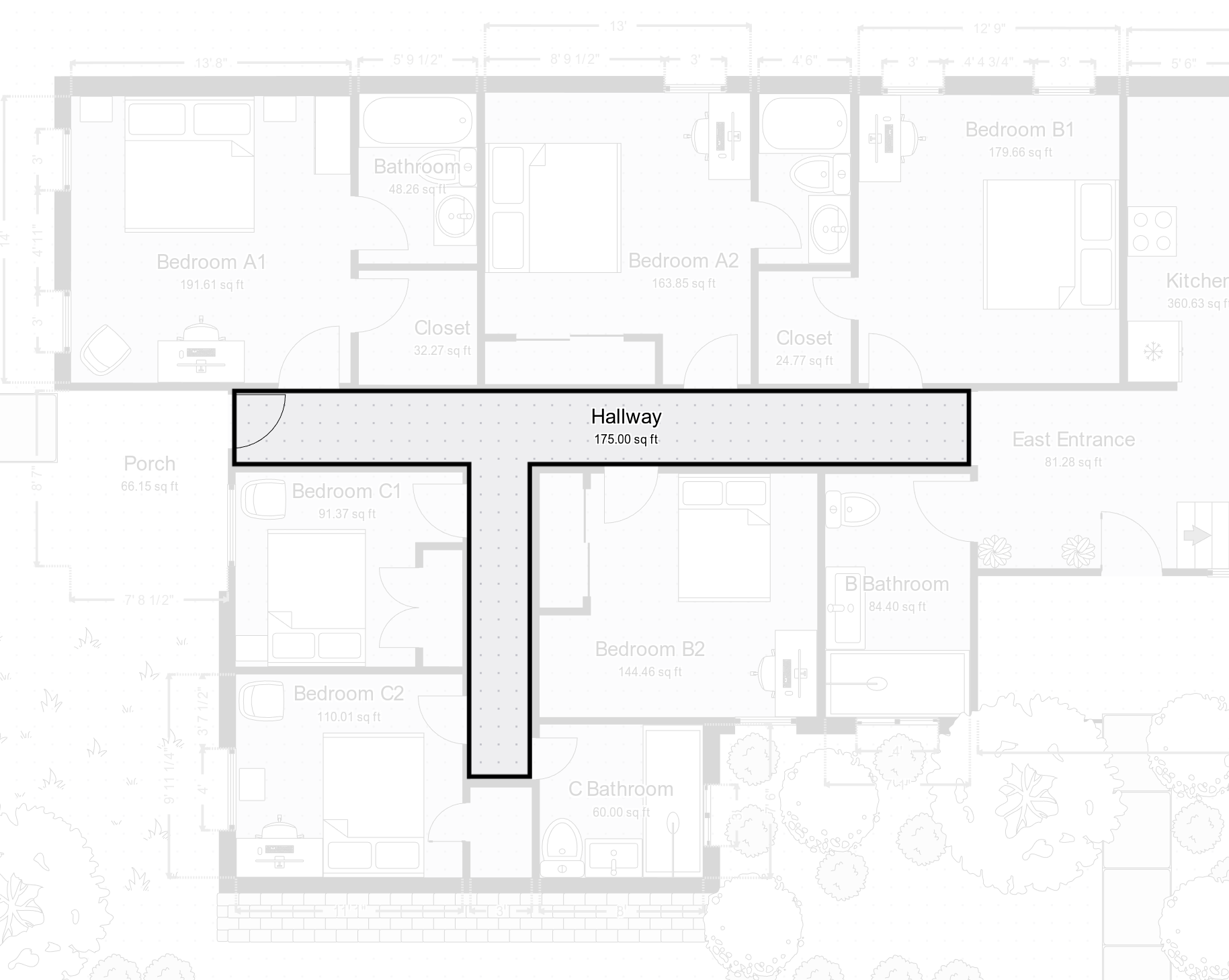
Zeta House requires cleaning for common areas and bedrooms. Use the following property plans to understand the floor layout and rooms.

View Property Plans: https://cloud.magicplan.app/plan/fb0fc5b7-0b42-4cb9-9ae6-3d2d6a120b9b

Common Area Cleaning - Scheduled once a Month

Once a month, the common areas require a clean:

  • Hallway
  • East Entrance
  • Kitchen/Dining Room
  • B Bathroom
  • C Bathroom
  • Deck
  • Office
    • Desks Area
    • Lounge Area
    • Conference Area
  • Cleaning Robot Ground Floor
  • Cleaning Robot Office

Estimated time is based on 1 person with all equipment available without any extreme dirtiness.

In the case of extreme dirtiniess, provide evidence and it will be paid extra on a per-30 minute basis.

Notes on equipment:

  1. Use the bucket with clean water to wash the Spray Mop. Use the backup Mop if the existing Mop is being cleand.
  2. Fill the Spray Mop bottle with just clean water without any detergent.
  3. Acquire equipment from storage specified below.
  4. Report on any lack of consumable inventory e.g. toilet paper.

Payment and Time Expectations

  • Base Cleaning Cost: $200 USD
  • Extreme Dirtiness:
    • If any common area requires additional time due to extreme dirtiness, document the condition with clear, timestamped photos before starting the cleaning.
    • Additional cleaning time will be compensated at $25 USD per hour.
    • Ensure all extra cleaning time is logged and communicated for approval.
  • Expected Time: 6 hours as 1 person with all equipment.

Hallway

Required Equipment:

  • Portable Vacuum
  • Spray Mop
  • Bucket
  • Magic Eraser
  • Rubbish Bag

Steps:

  1. Prepare the Area:
    • Ensure the hallway is clear of any obstacles or loose items.
  2. Vacuum the Floor:
    • Use the portable vacuum to thoroughly clean the hardwood floor.
    • Remove any visible debris and ensure all edges and corners are addressed.
  3. Mop the Floor:
    • Mop the entire hallway, ensuring even coverage and removal of dirt and stains.
  4. Clean the Walls:
    • Inspect the walls for any visible smudges or marks.
    • Use a magic eraser to gently remove smudges without damaging the paint or surface.
  5. Dispose of Rubbish:
    • Collect any rubbish found during cleaning and place it into a rubbish bag.

Estimated Time: 10 minutes

East Entrance

Required Equipment:

  • Portable Vacuum
  • Spray Mop
  • Bucket
  • Magic Eraser
  • Rubbish Bag

Steps:

  1. Prepare the Area:
    • Move all shoes to the designated shoe rack.
    • Remove any visible rubbish or clutter from the area.
  2. Vacuum the Floor:
    • Use the portable vacuum to clean the hardwood floor, focusing on high-traffic areas and corners.
  3. Mop the Floor:
    • Fill the spray mop with a suitable cleaning solution.
    • Mop the entire floor to remove dirt and stains caused by foot traffic.
  4. Clean the Walls and Door:
    • Inspect walls and the door for smudges or marks.
    • Use a magic eraser to clean these areas, paying special attention to spots near the entrance.
  5. Dispose of Rubbish:
    • Collect any rubbish found during cleaning and place it into a rubbish bag.

Estimated Time: 10 minutes

C Bathroom

Required Equipment:

  • Portable Vacuum
  • Spray Mop
  • Bucket
  • Magic Eraser
  • Cleaning Spray
  • Disposable Cloth Wipes
  • Bleach Tablets
  • Drainol
  • Bathroom Mat
  • Toilet Paper
  • Small Rubbish Bag
  • Hand Sanitizer
  • Hand Soap

Steps:

  1. Dispose of Rubbish:

    • Empty the bathroom rubbish bin and replace the liner with a new plastic bag.

  2. Clean the mirror:

    • Wipe the mirror using the cleaning spray and disposable cloths.
  3. Clean the Sink and Cupboards:

    • Move resident's items aside until it is clean.
    • Wipe down the sink and cupboard handles using cleaning spray and disposable cloth wipes.
    • Wipe down the hair dryer using cleaning spray and disposable cloth wipes.
    • Remove any rubbish in the cupboards.
  4. Clean the Shower:

    • Spray and wipe down the shower area, removing any hair and disposing of it into the toilet.
    • Wipe handles using cleaning spray and disposable cloth.
    • Wipe the bathroom windows using cleaning spray and disposable cloth.
    • Pour a cup of drainol down the drain.
  5. Clean the Toilet:

    • Wipe down the toilet with cleaning spray and disposable cloth wipes.

    • Place a bleach tablet into the cistern.

  6. Clean the Bathroom Mat:

    • Take the bathroom mat and place it into the washing machine or queue it for washing.
    • Replace the bathroom mat with the spare dry one.
  7. Restock toilet rolls:

    • Dispose old toilet rolls that no longer have any paper.

    • Ensure there is 11 toilet rolls in the cabinet under the sink.

    • Ensure 1 usable roll is on the toilet roll holder, you can leave it as is if the toilet roll has 10% capacity.

  8. Restock Hand Sanitizer and Hand Soap. Leave them as is if they have 20% capacity.

  9. Clean the Floor:

    • Vacuum and mop the bathroom floor thoroughly.
  10. Wall Cleaning:

  • Inspect for wall smudges and a magic eraser to clean them.
  1. Ensure windows are closed.
  • Close and lock the windows avoid security breaches.
  1. Ventilate the room
  • Switch on the ventilation to avoid bleach smells.
  • Leave the door open.

Estimated Time: 45 minutes

B Bathroom

Required Equipment:

  • Portable Vacuum
  • Spray Mop
  • Bucket
  • Magic Eraser
  • Cleaning Spray
  • Disposable Cloth Wipes
  • Bleach Tablets
  • Drainol
  • Garden Hose
  • Bathroom Mat
  • Toilet Paper
  • Small Rubbish Bag

Steps:

  1. Dispose of Rubbish:

    • Empty the bathroom rubbish bin and replace the liner with a new plastic bag.

  2. Clean the mirror:

    • Wipe the mirror using the cleaning spray and disposable cloths.
  3. Clean the Sink and Cupboards:

    • Move resident's items aside until it is clean.
    • Wipe down the sink and cupboard handles using cleaning spray and disposable cloth wipes.
    • Wipe down the hair dryer using cleaning spray and disposable cloth wipes.
    • Remove any rubbish in the cupboards.
  4. Clean the Shower:

    • Spray and wipe down the shower area, removing any hair and disposing of it into the toilet.
    • Use the garden hose to spray down the walls and windows, attach the hose from the outside tap next to the East Entrance.
    • Wipe handles using cleaning spray and disposable cloth.
    • Wipe the bathroom windows using cleaning spray and disposable cloth.
    • Pour a cup of drainol down the drain.
  5. Clean the Toilet:

    • Wipe down the toilet with cleaning spray and disposable cloth wipes.

    • Place a bleach tablet into the cistern.

  6. Clean the Bathroom Mat:

    • Take the bathroom mat and place it into the washing machine or queue it for washing.
    • Replace the bathroom mat with the spare dry one.
  7. Restock toilet rolls:

    • Dispose old toilet rolls that no longer have any paper.

    • Ensure there is 11 toilet rolls in the cabinet under the sink.

    • Ensure 1 usable roll is on the toilet roll holder, you can leave it as is if the toilet roll has 10% capacity.

  8. Restock Hand Sanitizer and Hand Soap. Leave them as is if they have 20% capacity.

  9. Clean the Floor:

    • Vacuum and mop the bathroom floor thoroughly.
  10. Wall Cleaning:

  • Inspect for wall smudges and a magic eraser to clean them.
  1. Ensure windows are closed.
  • Close and lock the windows avoid security breaches.
  1. Ventilate the room
  • Switch on the ventilation to avoid bleach smells.
  • Leave the door open.

Estimated Time: 45 minutes

Office

Required Equipment:

  • Portable Vacuum
  • Spray Mop
  • Bucket
  • Magic Eraser
  • Cleaning Spray
  • Reusable Cloth Wipes

Steps:

  1. Prepare the Area:
    • Remove any visible rubbish or clutter from the area.
  2. Clean the Stairs:
    • Vacuum and mop the stairs thoroughly to remove dust and dirt.
  3. Clean the Hardwood Floor:
    • Vacuum and mop the hardwood floor in the office, ensuring all corners and edges are addressed.
  4. Clean the Lounge Area:
    • Move the furniture off the jute rug.
  5. Vacuum the jute rug thoroughly.
    • Wipe down the lounge furniture to remove stains or dust.
  6. Organize the lounge
    • Ensure that chess board is on top of the wooden pouf
    • Arrange books and games
    • Dust the shelves
  7. Clean the Desks:
  • Wipe down each unoccupied desk using cleaning spray and reusable cloth wipes.
  • For occupied desks, carefully wipe around items without disturbing their arrangement.
  • Collect any cups, plates, or mugs and take them to the kitchen for cleaning.
  1. Clean the Conference Area:
  • Wipe down the TV screen using a dry reusable cloth.
  • Clean the cabinet exterior with cleaning spray and reusable cloth wipes.
  1. Wall Scuff and Chair Base Scuff Cleaning:
  • Inspect for smudges on the walls and clean them using a magic eraser.
  • Take note that underneath each desk, residents may have created scuff marks on the wall. Clean the scuff marks with a magic eraser.
  • Use the magic eraser to clean the white chair base for unoccupied chairs.
  • Raise the desks to make it easier clean the walls. Becareful on the edges!
  1. Arrange desks and chairs.
  • Move desks around to ensure consistent gaps between each desk.
  • Move 1 office chair back to each desk.
  • Make sure that the south-side desks do not hit the attic handle when raising or lowering.

Estimated Time: 60 minutes

Kitchen/Dining Room

Required Equipment:

  • Portable Vacuum
  • Spray Mop
  • Bucket
  • Magic Eraser
  • Rubbish Bag for Trash Bin
  • Reusable Cloth Wipes
  • Cleaning Spray
  • Dishwashing Detergent
  • Dishwashing Tablets

Steps:

  1. Clean the Floors:

    • Move chairs and furniture to access all corners.
    • Vacuum and mop the hardwood floor, including the area under the stairs.
  2. Wipe Surfaces:

    • Clean countertops with cleaning spray and reusable cloth wipes.
    • Clean sink using dish detergent and reusable cloth wipes.
    • Wipe cupboard handles, fridge handles, and oven handles thoroughly.
    • Reusable cloth wipes can left to dry, or put into the laundry if washing something else.
  3. Clean Appliances:

    • Wipe the interior and exterior of the fridge and freezer to remove spills.

    • Wipe the interior and exterior of the microwave to remove stains.

    • Clean the stovetop and oven, ensuring all stains and grease are removed.

  4. Dishwashing Tasks:

    • Unload the dishwasher if there are clean items, and store them in the appropriate cupboards.

      • Plates
      • Bowls
      • Cups
      • Knives
      • Utensils
      • Cookware
    • Place all used cups, bowls, and utensils into the dishwasher.

    • Put used oven trays into the dishwasher.

    • Use 1 of the dishwashing tablets.

    • Run it with heat-drying option - this will take 3 hrs.

  5. Clean the Dining Area:

    • Wipe down the kitchen table and chairs.
  6. Laundry Dryer Maintenance:

    • Remove lint from the dryer's lint trap and dispose of it in the rubbish.
    • Check and clean the external lint trap outside.
  7. Deck Doors:

    • Vacuum and wipe the bottom sliding track of the deck doors to eliminate tracking friction.
  8. Garbage and Recycling:

    • Dispose of garbage and recycling into the outdoor bins.

      • Use the recycling bin on the south-side if the north-side recycling bin is full.
    • Rinse the kitchen bins and their lids using the outdoor tap next to the East Entrance to remove residual stains.

      • Shake off any water.
    • Replace the garbage bin liner with a new plastic bag from under the sink.

    • Empty the portable vacuum container into the outside trash.

  9. Wall Cleaning:

    • Inspect for wall smudges and use kitchen wipes or a magic eraser to clean them.

Estimated Time: 70 minutes

Deck

If it is raining, you don't need to clean the deck.

Required Equipment:

  • Garden Hose
  • Cleaning Spray
  • Disposable Cloth Wipes
  • Portable Vacuum
  • Rubbish Bag

Steps:

  1. Remove Debris:
    • Use the garden hose to spray down the deck, removing leaves, dirt, and other debris.
    • Focus on corners and hard-to-reach areas where debris tends to collect.
  2. Wipe Down Furniture:
    • Wipe down the table, benches, and outdoor chairs with cleaning spray and disposable cloth wipes.
  3. Arrange Furniture:
    • Arrange the 2 desks, ensuring they are evenly spaced.
  4. Place 6 outdoor chairs and 2 benches in their designated spots for optimal organization and usage.
  5. Dispose of Rubbish:
    • Collect any rubbish found on the deck or left in the area and place it into a rubbish bag.
    • Dispose of the rubbish in the designated outdoor bins.

Estimated Time: 20 minutes

Cleaning Robot Ground Floor

Required Equipment:

  • Safety Knife
  • Mop Scraper
  • Screw Driver
  • Robot Detergent
  • Vacuum Bag
  • Disposable Cloth Wipe
  • Toothbrush
  • Large Screw Driver (this may be needed)
  • Cleaning Spray

Steps:

  1. Prepare all equipment you need

  2. Turn off the Robot and Shut the Clean Water Tap

    • Press and hold the power button until it is off.
  3. Clean the Dock

    • Watch https://www.youtube.com/watch?v=6ZOqtO3fEoE

    • Detach the dock's front plate, and wash it in the sink.

    • Detach the circular mop cleaner and use the toothbrush and disposable cloth wipe to clean it off all debris.

    • Detach the drain cover and use the toothbrush and disposable cloth wipe to clean it.

    • Detach the main mop scrub and use toothbrush and disposable cloth wipe to clean off all debris.

    • Use cleaning spray disposable cloth wipe on the surface and interior of the dock.

    • Wash the circular mop cleaner, the drain cover, the scrub in the sink.

    • Reinstall the circular mop cleaner, the drain cover, the scrub nad the dock.

  4. Monitor the Vacuum Bag for capacity

    • Replace the Vacuum Bag if it is full.

  5. Clean the Robot

    • Watch https://www.youtube.com/watch?v=bGXumeQJDVg

    • Use the B Bathroom Sink or the East Entrance Tap for Cleaning.

    • Flip over the robot and inspect the spinner, the circular mop, the main mop and the red and black roller brushes.

    • Use the screw drive to detach the spinning arm. Make sure to keep the screw safe.

    • Ensure all hair has been removed with the Safety Knife. Reattach the spinning arm onto the screwhole.

    • Extract the red and black roller brushes.

    • Clean the roller brushes underside, and also pull out the top and bottom pins of each roller brush and use the safety knife to cut out the hair.

    • Reattach all pins to the correct roller brush, and reattach the roller brushes to the robot and secure it.

    • Remove the mop cloth by sliding it out.

    • Use the mop scraper and toothbrush and cleaning spray to clean the mop.

    • Use the screw driver to detach the circular mop and clean it as well and reattach it.

    • Reattach the mop after cleaning, it should be rinsed before reattaching.

    • Extract out the robot filter and clean it by opening it, and then heat dry it before putting it back. This only has to be done once every 6 months.

    • Wipe the exterior sensors of the robot.

  6. Refill Cleaning Liquid

  7. Put the robot back into the dock. Turn on the Robot and Open the Clean Water Tap.

    • Press and hold the power button until it is on.
    • Press the home button it will navigate back to the dock automatically.
    • Wipe off ground around the robot dock as it may be dirty

Estimated Time: 45 minutes

Cleaning Robot Office

TBD.

Estimated Time: 45 minutes

Bedroom Cleaning - Ad-Hoc

When a resident moves out of a bedroom, the bedroom and associated bathroom requires a clean. This can occur on any date, and we require clean to be done within 2 days of the resident moving out, in some cases as early as within 1 day.

Lease end times will be sent to you ahead of time, however these may change within a week's notice.

Alternative arrangements must be provided by the cleaner if they cannot make it.

Bedrooms may be locked, if so, a room code will be supplied to you to open it. Leave the bedroom doors unlocked, do not lock them.

We have 6 bedrooms up for cleaning with monthly minimum stays. Our leases on average last 3 months. This means we expect a range of 12 to 36 bedroom cleaning sessions per year or 1 to 3 bedroom cleaning sessions per month.

Payment and Time Expectations

  • Base Cleaning Cost: $60 USD for the first bedroom cleaned per session.
  • Additional Bedrooms: $25 USD per additional bedroom cleaned during the same session. For example:
    • Cleaning 1 bedroom: $60 USD.
    • Cleaning 2 bedrooms: $85 USD ($60 + $25).
    • Cleaning 3 bedrooms: $110 USD ($60 + $25 + $25).
  • Extreme Dirtiness:
    • If the room requires additional time due to extreme dirtiness, document the condition with clear, timestamped photos before starting the cleaning.
    • Additional cleaning time will be compensated at $25 USD per hour.
    • Ensure all extra cleaning time is logged and communicated for approval.

A1

Required Equipment:

  • Portable Vacuum
  • Spray Mop
  • Bucket
  • Cleaning Spray
  • Magic Eraser
  • Duster
  • Disposable Cloth Wipe
  • Drainol
  • Bleach Tablet
  • Laundry Bag
  • Sodium Percarbonate
  • Laundry Detergent
  • Washing Machine Balls
  • King Size Bed Linen
    • Pillowcases (2x)
    • Pillow protectors (2x)
    • Comforter (1x)
    • Top sheet (1x)
    • Fitted sheet (1x)
    • Waterproof mattress protector (1x)
    • Square pillowcase (1x)
  • Bathroom Linen
    • White Towel (1x)
    • Colored Towel (1x)
    • Bathroom Mat (1x)
    • Shower Curtain (1x)

Washing Steps:

  1. Remove and Wash Bedding and Linens:

    • Strip the bed of all linens.

    • Collect all bathroom linens (towels, mat, and shower curtain liner).

  2. Prepare Laundry:

    • Place all linens and towels into a laundry bag and transfer to the washing machine.

    • Use 3 or 4 washing machine balls for white linen for separation.

    • Put in white linen first, comforter second in case of capacity contraints.

    • Set the washing machine to Bedding Mode with the following settings:

      • Pre-wash enabled.

      • Add high-efficiency detergent to the main wash section and sodium percarbonate to the pre-wash section.

    • If another load is already running, queue the laundry in the designated area.

    • Notify the community manager that A1 laundry is either washing or drying. No need to wait for the cycle to finish.

  3. Replace with Fresh Linens:

    • Retrieve a new linen set from CB storage and make the bed with:

      • Waterproof Mattress Protector

      • Fitted Sheet

      • Top Sheet

      • Comforter

      • Pillow Protectors

      • Pillowcases

      • Square Pillowcase

    • Fluff pillows to ensure a neat and symmetrical appearance.

    • Fold a white towel and coloured towel and place onto bed.

Cleaning Steps:

  1. Dust and Clean Surfaces:

    • Use a duster to clean the ceiling fan.

    • Wipe down the desk, desk chair, lounge chair, dresser and nightstands with cleaning spray and disposable cloth wipes.

    • Open nightstand drawers to remove rubbish. Ensure only 2 power adapters and wooden stakes remain. Plug in the stakes if necessary.

    • Open dresser drawers and remove all rubbish. Ensure each drawer contains the wooden stakes to be plugged in.

  2. Clean the Closet Area:

    • Vacuum and mop the closet floor.
    • Remove all rubbish from the closet.
    • Arrange hangers; only black hangers should remain. Remove all non-black hangers.
  3. Clean the Bathroom:

    • Vacuum and mop the bathroom floor.

    • Wipe the sink, taps, and shower area with cleaning spray and disposable cloth wipes.

    • Empty drawers of rubbish, leaving only a blow dryer and toilet paper.

    • Wipe the blow dryer and replace the toilet roll if needed.

    • Restock toilet rolls:

      • Dispose old toilet rolls that no longer have any paper.

      • Ensure there is 5 rolls in the cabinet under the sink.

      • Ensure 1 usable roll is on the toilet roll holder, you can leave it as is if the toilet roll has 10% capacity.

    • Restock Hand Sanitizer and Hand Soap. Leave them as is if they have 20% capacity.

    • Clean the shower, removing stains and wiping taps and handles.

    • Place a bleach tablet in the toilet cistern.

    • Pour a small amount of Drainol into the shower drain.

    • Rinse the toilet bowl cleaner under the shower water; replace it if too dirty.

    • Turn on the bathroom fan for ventilation.

  4. Floor Cleaning:

    • Vacuum and mop all hardwood floors in the bedroom and closet.
    • Use a magic eraser to remove wall stains, especially near the desk.
  5. Tidy and Arrange:

    • Dispose of all rubbish and recycling in the appropriate bins.

    • Water the self-watering plant from the back side until the reservoir is full.

    • Place the plant on the nearest nightstand and plug it in. Ensure the light is set to white. Set the hourly timer to 9 hours.

Final Check:

  • Verify all furniture and fixtures are clean and arranged properly.

  • Lock windows securely.

  • Bring down all curtains.

  • Take clear photos of the cleaned room, closet, and bathroom.

  • Send the photos to the community manager.

  • Leave the bedroom door open.

Estimated Time: 1 hour.

A2

Required Equipment:

  • Portable Vacuum
  • Spray Mop
  • Bucket
  • Cleaning Spray
  • Magic Eraser
  • Duster
  • Disposable Cloth Wipe
  • Drainol
  • Bleach Tablet
  • Laundry Bag
  • Sodium Percarbonate
  • Laundry Detergent
  • Washing Machine Balls
  • Queen Size Bed Linen
    • Pillowcases (2x)
    • Pillow protectors (2x)
    • Comforter (1x)
    • Top sheet (1x)
    • Fitted sheet (1x)
    • Waterproof mattress protector (1x)
    • Square pillowcase (1x)
  • Bathroom Linen
    • White Towel (1x)
    • Colored Towel (1x)
    • Bathroom Mat (1x)
    • Shower Curtain (1x)

Washing Steps:

  1. Remove and Wash Bedding and Linens:

    • Strip the bed of all linens.

    • Collect all bathroom linens (towels, mat, and shower curtain liner).

  2. Prepare Laundry:

    • Place all linens and towels into a laundry bag and transfer to the washing machine.

    • Use 3 or 4 washing machine balls for white linen for separation.

    • Put in white linen first, comforter second in case of capacity contraints.

    • Set the washing machine to Bedding Mode with the following settings:

      • Pre-wash enabled.

      • Add high-efficiency detergent to the main wash section and sodium percarbonate to the pre-wash section.

    • If another load is already running, queue the laundry in the designated area.

    • Notify the community manager that A2 laundry is either washing or drying. No need to wait for the cycle to finish.

  3. Replace with Fresh Linens:

    • Retrieve a new linen set from CB storage and make the bed with:

      • Waterproof Mattress Protector

      • Fitted Sheet

      • Top Sheet

      • Comforter

      • Pillow Protectors

      • Pillowcases

      • Square Pillowcase

    • Fluff pillows to ensure a neat and symmetrical appearance.

    • Fold a white towel and coloured towel and place onto bed.

Cleaning Steps:

  1. Dust and Clean Surfaces:

    • Use a duster to clean the ceiling fan.

    • Wipe down the desk, desk chair, lounge chair, and nightstands with cleaning spray and disposable cloth wipes.

    • Open nightstand drawers to remove rubbish. Ensure only 2 power adapters and wooden stakes remain. Plug in the stakes if necessary.

  2. Clean the Closet Area:

    • Vacuum and mop the closet floor.
    • Remove all rubbish from the closet.
    • Arrange hangers; only black hangers should remain. Remove all non-black hangers.
  3. Clean the Bathroom:

    • Vacuum and mop the bathroom floor.

    • Wipe the sink, taps, and shower area with cleaning spray and disposable cloth wipes.

    • Empty drawers of rubbish, leaving only a blow dryer and toilet paper.

    • Wipe the blow dryer and replace the toilet roll if needed.

    • Restock toilet rolls:

      • Dispose old toilet rolls that no longer have any paper.

      • Ensure there is 5 rolls in the cabinet under the sink.

      • Ensure 1 usable roll is on the toilet roll holder, you can leave it as is if the toilet roll has 10% capacity.

    • Restock Hand Sanitizer and Hand Soap. Leave them as is if they have 20% capacity.

    • Clean the shower, removing stains and wiping taps and handles.

    • Place a bleach tablet in the toilet cistern.

    • Pour a small amount of Drainol into the shower drain.

    • Rinse the toilet bowl cleaner under the shower water; replace it if too dirty.

    • Turn on the bathroom fan for ventilation.

  4. Floor Cleaning:

    • Vacuum and mop all hardwood floors in the bedroom and closet.
    • Use a magic eraser to remove wall stains, especially near the desk.
  5. Tidy and Arrange:

    • Dispose of all rubbish and recycling in the appropriate bins.

    • Water the self-watering plant from the back side until the reservoir is full.

    • Place the plant on the nearest nightstand and plug it in. Ensure the light is set to white. Set the hourly timer to 9 hours.

Final Check:

  • Verify all furniture and fixtures are clean and arranged properly.

  • Lock windows securely.

  • Bring down all curtains.

  • Take clear photos of the cleaned room, closet, and bathroom.

  • Send the photos to the community manager.

  • Leave the bedroom door open.

Estimated Time: 1 hour.

B1 and B Bathroom

Required Equipment:

  • Portable Vacuum
  • Spray Mop
  • Bucket
  • Cleaning Spray
  • Magic Eraser
  • Disposable Cloth Wipe
  • Drainol
  • Bleach Tablet
  • Laundry Bag
  • Sodium Percarbonate
  • Laundry Detergent
  • Washing Machine Balls
  • Queen Size Bed Linen:
    • Pillowcases (2x)
    • Pillow Protectors (2x)
    • Comforter (1x)
    • Top Sheet (1x)
    • Fitted Sheet (1x)
    • Waterproof Mattress Protector (1x)
    • Square Pillowcase (1x)
  • Bathroom Linen:
    • White Towel (1x)
    • Colored Towel (1x)
    • Bathroom Mat (1x)
    • Shower Curtain (1x)

Washing Steps:

  1. Remove and Wash Bedding and Linens:

    • Strip the bed of all linens.
    • Collect all bathroom linens (towels, mat).
  2. Prepare Laundry:

    • Place all linens and towels into a laundry bag and transfer to the washing machine.

    • Use 3 or 4 washing machine balls for white linen for separation.

    • Put in white linen first, comforter second in case of capacity contraints.

    • Set the washing machine to Bedding Mode with the following settings:

      • Pre-wash enabled.

      • Add high-efficiency detergent to the main wash section and sodium percarbonate to the pre-wash section.

    • If another load is already running, queue the laundry in the designated area.

    • Notify the community manager that B1 laundry is either washing or drying. No need to wait for the cycle to finish.

  3. Replace with Fresh Linen:

    • Retrieve a new linen set from CB storage and make the bed with:

      • Waterproof Mattress Protector

      • Fitted Sheet

      • Top Sheet

      • Comforter

      • Pillow Protectors

      • Pillowcases

      • Square Pillowcase

    • Fluff pillows to ensure a neat and symmetrical appearance.

    • Fold a white towel and coloured towel and place onto bed.

Cleaning Steps:

  1. Dust and Clean Surfaces:

    • Use a duster to clean the ceiling fan.

    • Wipe down the desk, desk chair, lounge chair, and nightstands with cleaning spray and disposable cloth wipes.

    • Open nightstand drawers to remove rubbish. Ensure each drawer contains only 2 power adapters and wooden stakes. Plug in the stakes if necessary.

  2. Clean the Closet Area:

    • Vacuum and mop the closet floor.
    • Remove all rubbish from the closet.
    • Arrange hangers; only black hangers should remain. Remove all non-black hangers.
  3. Floor Cleaning:

    • Vacuum and mop all hardwood floors in the bedroom and closet.
    • Use a magic eraser to remove wall stains, especially near the desk.
  4. Tidy and Arrange:

    • Dispose of all rubbish and recycling in the appropriate bins.

    • Water the self-watering plant from the back side until the reservoir is full.

    • Place the plant on the nearest nightstand and plug it in. Ensure the light is set to white. Set the hourly timer to 9 hours.

B Bathroom Cleaning Steps:

  1. Dust and Clean Surfaces:

    • Dispose of rubbish in bathroom bin and put in a new small rubbish bag.

    • Vacuum and mop the bathroom floor.

    • Wipe down the sink, taps, and shower area with cleaning spray and disposable cloth wipes.

    • Empty drawers of rubbish, leaving only a blow dryer and toilet paper.

    • Wipe the blow dryer and replace the toilet roll if needed.

  2. Restock Supplies:

    • Ensure there are 11 toilet rolls in the drawer using CB storage supplies.

    • Ensure there is 1 toilet roll on the holder.

    • Restock Hand Sanitizer and Hand Soap. Leave them as is if they have 20% capacity.

  3. Clean the Shower and Toilet:

    • Wipe the shower tub, taps, and handles.

    • Place a bleach tablet in the toilet cistern.

    • Pour a small amount of Drainol into the shower drain.

    • Rinse the toilet bowl cleaner under the shower water; replace it if too dirty.

  4. Ventilation and Final Touches:

    • Turn on the bathroom fan for ventilation.

Final Check:

  • Ensure all furniture and fixtures in the bedroom and bathroom are clean and properly arranged.

  • Lock windows securely.

  • Bring down all curtains.

  • Take clear photos of the cleaned room, closet, and bathroom.

  • Send the photos to the community manager.

  • Leave the bedroom door open.

Estimated Time: 1 hour.

B2 and B Bathroom

Required Equipment:

  • Portable Vacuum
  • Spray Mop
  • Bucket
  • Cleaning Spray
  • Magic Eraser
  • Disposable Cloth Wipe
  • Drainol
  • Bleach Tablet
  • Laundry Bag
  • Sodium Percarbonate
  • Laundry Detergent
  • Washing Machine Balls
  • Queen Size Bed Linen:
    • Pillowcases (2x)
    • Pillow Protectors (2x)
    • Comforter (1x)
    • Top Sheet (1x)
    • Fitted Sheet (1x)
    • Waterproof Mattress Protector (1x)
    • Square Pillowcase (1x)
  • Bathroom Linen:
    • White Towel (1x)
    • Colored Towel (1x)
    • Bathroom Mat (1x)
    • Shower Curtain (1x)

Washing Steps:

  1. Remove and Wash Bedding and Linens:

    • Strip the bed of all linens.
    • Collect all bathroom linens (towels, mat).
  2. Prepare Laundry:

    • Place all linens and towels into a laundry bag and transfer to the washing machine.

    • Use 3 or 4 washing machine balls for white linen for separation.

    • Put in white linen first, comforter second in case of capacity contraints.

    • Set the washing machine to Bedding Mode with the following settings:

      • Pre-wash enabled.

      • Add high-efficiency detergent to the main wash section and sodium percarbonate to the pre-wash section.

    • If another load is already running, queue the laundry in the designated area.

    • Notify the community manager that B2 laundry is either washing or drying. No need to wait for the cycle to finish.

  3. Replace with Fresh Linen:

    • Retrieve a new linen set from CB storage and make the bed with:

      • Waterproof Mattress Protector

      • Fitted Sheet

      • Top Sheet

      • Comforter

      • Pillow Protectors

      • Pillowcases

      • Square Pillowcase

    • Fluff pillows to ensure a neat and symmetrical appearance.

    • Fold a white towel and coloured towel and place onto bed.

Cleaning Steps:

  1. Dust and Clean Surfaces:

    • Use a duster to clean the ceiling fan.

    • Wipe down the desk, desk chair, lounge chair, and nightstands with cleaning spray and disposable cloth wipes.

    • Open nightstand drawers to remove rubbish. Ensure each drawer contains only 2 power adapters and wooden stakes. Plug in the stakes if necessary.

  2. Clean the Closet Area:

    • Vacuum and mop the closet floor.
    • Remove all rubbish from the closet.
    • Arrange hangers; only black hangers should remain. Remove all non-black hangers.
  3. Floor Cleaning:

    • Vacuum and mop all hardwood floors in the bedroom and closet.
    • Use a magic eraser to remove wall stains, especially near the desk.
  4. Tidy and Arrange:

    • Dispose of all rubbish and recycling in the appropriate bins.

    • Water the self-watering plant from the back side until the reservoir is full.

    • Place the plant on the nearest nightstand and plug it in. Ensure the light is set to white. Set the hourly timer to 9 hours.

B Bathroom Cleaning Steps:

  1. Dust and Clean Surfaces:

    • Dispose of rubbish in bathroom bin and put in a new small rubbish bag.

    • Vacuum and mop the bathroom floor.

    • Wipe down the sink, taps, and shower area with cleaning spray and disposable cloth wipes.

    • Empty drawers of rubbish, leaving only a blow dryer and toilet paper.

    • Wipe the blow dryer and replace the toilet roll if needed.

  2. Restock Supplies:

    • Ensure there are 11 toilet rolls in the drawer using CB storage supplies.

    • Ensure there is 1 toilet roll on the holder.

    • Restock Hand Sanitizer and Hand Soap. Leave them as is if they have 20% capacity.

  3. Clean the Shower and Toilet:

    • Wipe the shower tub, taps, and handles.

    • Place a bleach tablet in the toilet cistern.

    • Pour a small amount of Drainol into the shower drain.

    • Rinse the toilet bowl cleaner under the shower water; replace it if too dirty.

  4. Ventilation and Final Touches:

    • Turn on the bathroom fan for ventilation.

Final Check:

  • Ensure all furniture and fixtures in the bedroom and bathroom are clean and properly arranged.

  • Lock windows securely.

  • Bring down all curtains.

  • Take clear photos of the cleaned room, closet, and bathroom.

  • Send the photos to the community manager.

  • Leave the bedroom door open.

Estimated Time: 1 hour.

C1 and C Bathroom

Required Equipment:

  • Portable Vacuum
  • Spray Mop
  • Bucket
  • Cleaning Spray
  • Magic Eraser
  • Disposable Cloth Wipe
  • Drainol
  • Bleach Tablet
  • Laundry Bag
  • Sodium Percarbonate
  • Laundry Detergent
  • Washing Machine Balls
  • Small Rubbish Bag
  • Full Size Bed Linen:
    • Pillowcases (2x)
    • Pillow Protectors (2x)
    • Comforter (1x)
    • Top Sheet (1x)
    • Fitted Sheet (1x)
    • Waterproof Mattress Protector (1x)
    • Square Pillowcase (1x)
  • Bathroom Linen:
    • White Towel (1x)
    • Colored Towel (1x)
    • Bathroom Mat (1x)
    • Shower Curtain (1x)

Washing Steps:

  1. Remove and Wash Bedding and Linens:

    • Strip the bed of all linens.
    • Collect all bathroom linens (towels, mat).
  2. Prepare Laundry:

    • Place all linens and towels into a laundry bag and transfer to the washing machine.

    • Use 3 or 4 washing machine balls for white linen for separation.

    • Put in white linen first, comforter second in case of capacity contraints.

    • Set the washing machine to Bedding Mode with the following settings:

      • Pre-wash enabled.

      • Add high-efficiency detergent to the main wash section and sodium percarbonate to the pre-wash section.

    • If another load is already running, queue the laundry in the designated area.

    • Notify the community manager that C1 laundry is either washing or drying. No need to wait for the cycle to finish.

  3. Replace with Fresh Linen:

    • Retrieve a new linen set from CB storage and make the bed with:

      • Waterproof Mattress Protector

      • Fitted Sheet

      • Top Sheet

      • Comforter

      • Pillow Protectors

      • Pillowcases

      • Square Pillowcase

    • Fluff pillows to ensure a neat and symmetrical appearance.

    • Fold a white towel and coloured towel and place onto bed.

Cleaning Steps:

  1. Dust and Clean Surfaces:

    • Use a duster to clean the ceiling fan.

    • Wipe down the lounge chair, and nightstands with cleaning spray and disposable cloth wipes.

    • Open nightstand drawers to remove rubbish. Ensure each drawer contains only 2 power adapters and wooden stakes. Plug in the stakes if necessary.

  2. Clean the Closet Area:

    • Vacuum and mop the closet floor.
    • Remove all rubbish from the closet.
    • Arrange hangers; only black hangers should remain. Remove all non-black hangers.
    • Clean the mirror with disposable mop and cleaning spray.
  3. Floor Cleaning:

    • Vacuum and mop all hardwood floors in the bedroom and closet.
    • Use a magic eraser to remove wall stains, especially near the desk.
  4. Tidy and Arrange:

    • Dispose of all rubbish and recycling in the appropriate bins.

    • Water the self-watering plant from the back side until the reservoir is full.

    • Place the plant on the nearest nightstand and plug it in. Ensure the light is set to white. Set the hourly timer to 9 hours.

C Bathroom Cleaning Steps:

  1. Dust and Clean Surfaces:

    • Dispose of rubbish in bathroom bin and put in a new small rubbish bag.

    • Vacuum and mop the bathroom floor.

    • Wipe down the sink, taps, and shower area with cleaning spray and disposable cloth wipes.

    • Empty drawers of rubbish, leaving only a blow dryer and toilet paper.

    • Wipe the blow dryer and replace the toilet roll if needed.

  2. Restock Supplies:

    • Ensure there are 11 toilet rolls in the drawer using CB storage supplies.

    • Ensure there is 1 toilet roll on the holder.

    • Restock Hand Sanitizer and Hand Soap. Leave them as is if they have 20% capacity.

  3. Clean the Shower and Toilet:

    • Wipe the shower tub, taps, and handles.

    • Place a bleach tablet in the toilet cistern.

    • Pour a small amount of Drainol into the shower drain.

    • Rinse the toilet bowl cleaner under the shower water; replace it if too dirty.

  4. Ventilation and Final Touches:

    • Turn on the bathroom fan for ventilation.

Final Check:

  • Ensure all furniture and fixtures in the bedroom and bathroom are clean and properly arranged.

  • Lock windows securely.

  • Bring down all curtains.

  • Take clear photos of the cleaned room, closet, and bathroom.

  • Send the photos to the community manager.

  • Leave the bedroom door open, use the door wedge.

Estimated Time: 1 hour.

C2 and C Bathroom

Required Equipment:

  • Portable Vacuum
  • Spray Mop
  • Bucket
  • Cleaning Spray
  • Magic Eraser
  • Disposable Cloth Wipe
  • Drainol
  • Bleach Tablet
  • Laundry Bag
  • Sodium Percarbonate
  • Laundry Detergent
  • Washing Machine Balls
  • Small Rubbish Bag
  • Full Size Bed Linen:
    • Pillowcases (2x)
    • Pillow Protectors (2x)
    • Comforter (1x)
    • Top Sheet (1x)
    • Fitted Sheet (1x)
    • Waterproof Mattress Protector (1x)
    • Square Pillowcase (1x)
  • Bathroom Linen:
    • White Towel (1x)
    • Colored Towel (1x)
    • Bathroom Mat (1x)
    • Shower Curtain (1x)

Washing Steps:

  1. Remove and Wash Bedding and Linens:

    • Strip the bed of all linens.
    • Collect all bathroom linens (towels, mat).
  2. Prepare Laundry:

    • Place all linens and towels into a laundry bag and transfer to the washing machine.

    • Use 3 or 4 washing machine balls for white linen for separation.

    • Put in white linen first, comforter second in case of capacity contraints.

    • Set the washing machine to Bedding Mode with the following settings:

      • Pre-wash enabled.

      • Add high-efficiency detergent to the main wash section and sodium percarbonate to the pre-wash section.

    • If another load is already running, queue the laundry in the designated area.

    • Notify the community manager that C2 laundry is either washing or drying. No need to wait for the cycle to finish.

  3. Replace with Fresh Linen:

    • Retrieve a new linen set from CB storage and make the bed with:

      • Waterproof Mattress Protector

      • Fitted Sheet

      • Top Sheet

      • Comforter

      • Pillow Protectors

      • Pillowcases

      • Square Pillowcase

    • Fluff pillows to ensure a neat and symmetrical appearance.

    • Fold a white towel and coloured towel and place onto bed.

Cleaning Steps:

  1. Dust and Clean Surfaces:

    • Use a duster to clean the ceiling fan.

    • Wipe down the desk, desk chair, lounge chair, and nightstands with cleaning spray and disposable cloth wipes.

    • Open nightstand drawers to remove rubbish. Ensure each drawer contains only 2 power adapters and wooden stakes. Plug in the stakes if necessary.

  2. Clean the Closet Area:

    • Vacuum and mop the closet floor.
    • Remove all rubbish from the closet.
    • Arrange hangers; only black hangers should remain. Remove all non-black hangers.
  3. Floor Cleaning:

    • Vacuum and mop all hardwood floors in the bedroom and closet.
    • Use a magic eraser to remove wall stains, especially near the desk.
  4. Tidy and Arrange:

    • Dispose of all rubbish and recycling in the appropriate bins.

    • Water the self-watering plant from the back side until the reservoir is full.

    • Place the plant on the nearest nightstand and plug it in. Ensure the light is set to white. Set the hourly timer to 9 hours.

C Bathroom Cleaning Steps:

  1. Dust and Clean Surfaces:

    • Dispose of rubbish in bathroom bin and put in a new small rubbish bag.

    • Vacuum and mop the bathroom floor.

    • Wipe down the sink, taps, and shower area with cleaning spray and disposable cloth wipes.

    • Empty drawers of rubbish, leaving only a blow dryer and toilet paper.

    • Wipe the blow dryer and replace the toilet roll if needed.

  2. Restock Supplies:

    • Ensure there are 11 toilet rolls in the drawer using CB storage supplies.

    • Ensure there is 1 toilet roll on the holder.

    • Restock Hand Sanitizer and Hand Soap. Leave them as is if they have 20% capacity.

  3. Clean the Shower and Toilet:

    • Wipe the shower tub, taps, and handles.

    • Place a bleach tablet in the toilet cistern.

    • Pour a small amount of Drainol into the shower drain.

    • Rinse the toilet bowl cleaner under the shower water; replace it if too dirty.

  4. Ventilation and Final Touches:

    • Turn on the bathroom fan for ventilation.

Final Check:

  • Ensure all furniture and fixtures in the bedroom and bathroom are clean and properly arranged.

  • Lock windows securely.

  • Bring down all curtains.

  • Take clear photos of the cleaned room, closet, and bathroom.

  • Send the photos to the community manager.

  • Leave the bedroom door open, use the door wedge.

Estimated Time: 1 hour.

Equipment and Consumables

Cleaning Tools

  • Portable Vacuum

    • Location: Kitchen Under Stairs

  • Spray Mop

    • Location: C Bathroom Storage
  • Bucket

    • Location: C Bathroom Storage
  • Duster

    • Location: C Bathroom Storage
  • Magic Eraser

    • Location: C Bathroom Storage

  • Toilet Bowl Brushes

    • Location: In each bathroom and C Bathroom Storage
  • Garden Hose

    • Location: Outdoor Shed - Code is ZETA in phone numerals.

Cleaning Supplies

  • Cleaning Spray

    • Location: C Bathroom Storage

  • Drainol

    • Location: C Bathroom Storage

  • Bleach Tablets

    • Location: C Bathroom Storage

  • Disposable Cloth Wipes

    • Location: Kitchen Under Sink Cabinet
  • Reusable Cloth Wipes

    • Location: Kitchen Under Sink Cabinet

Laundry Supplies

  • Laundry Detergent

    • Location: Kitchen Laundry Cabinet
  • Sodium Percarbonate

    • Location: Kitchen Laundry Cabinet
  • Washing Machine Balls

    • Location: Kitchen Laundry Cabinet

  • Laundry Bag

    • Location: In each bedroom

Linen and Bathroom Supplies

  • Bed Linens
    • Location: C Bathroom Storage
  • Bathroom Linens
    • Location: C Bathroom Storage
  • Toilet Paper
    • Location: C Bathroom Storage
  • Hand Sanitizer
    • Location: C Bathroom Storage
  • Hand Soap
    • Location: C Bathroom Storage

Robot Maintenance Supplies

  • Safety Knife

    • Location: C Bathroom Storage

  • Mop Scraper

    • Location: C Bathroom Storage

  • Screwdriver

    • Location: C Bathroom Storage

  • Toothbrush

    • Location: C Bathroom Storage

  • Robot Detergent

    • Location: C Bathroom Storage
  • Vacuum Bags

    • Location: C Bathroom Storage

  • Gloves

    • Location: C Bathroom Storage

Rubbish Supplies

  • Rubbish Bag

    • Location: Kitchen Under Sink Cabinet

  • Small Rubbish Bag

    • Location: Kitchen Under Sink Cabinet

Dishwasher Supplies

  • Dishwashing Tablet

    • Location: Kitchen Under Sink Cabinet

  • Dishwashing Detergent

    • Location: Kitchen Sink